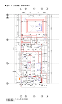
物件詳細 【非路面店】中洲藤本ビル 3階 所在地 福岡市博多区福岡市博多区中洲2丁目7-12 交通 福岡市営地下鉄空港線 中洲川端 6分 使用部分面積 71.12㎡ 賃料 19.80万円 敷金 6ヶ月 礼金 無 会員登録すると続きをお読みいただけます。 ログイン 無料会員登録 mail物件問い合わせ home_work物件申込み search_check物件内覧申込み favoriteお気に入り