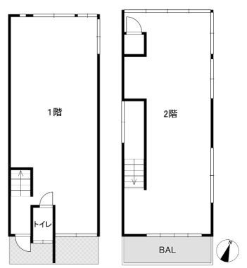
物件詳細 【路面】六本松1丁目ロジウラ店舗 所在地 福岡市中央区六本松1丁目3-17 交通 福岡市営地下鉄七隈線 六本松 7分 使用部分面積 70.38㎡ 賃料 13.00万円 敷金 無 礼金 2ヶ月 会員登録すると続きをお読みいただけます。 ログイン 無料会員登録 mail物件問い合わせ home_work物件申込み search_check物件内覧申込み favoriteお気に入り