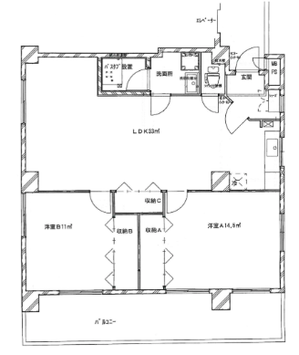
物件詳細 【非路面】東洋マンション大名 601 所在地 福岡市中央区大名2丁目1-43 交通 福岡市営地下鉄空港線 天神 8分 使用部分面積 78.19㎡ 賃料 19.80万円 敷金 1ヶ月 礼金 2ヶ月 会員登録すると続きをお読みいただけます。 ログイン 無料会員登録 mail物件問い合わせ home_work物件申込み search_check物件内覧申込み favoriteお気に入り