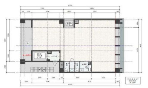
物件詳細 【非路面店】Capital Gate 4階 所在地 福岡市中央区薬院4丁目1-4 交通 福岡市営地下鉄七隈線 薬院大通 2分 使用部分面積 119.94㎡ 賃料 67.84万円 敷金 6ヶ月 礼金 無 会員登録すると続きをお読みいただけます。 ログイン 無料会員登録 mail物件問い合わせ home_work物件申込み search_check物件内覧申込み favoriteお気に入り