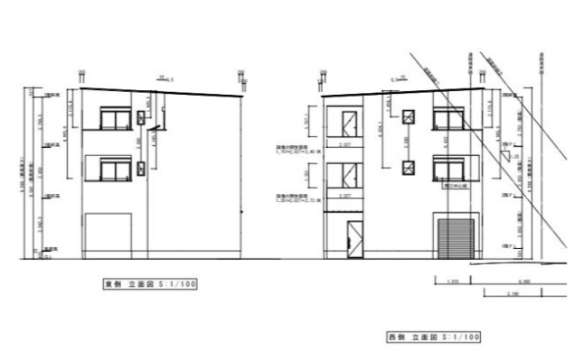
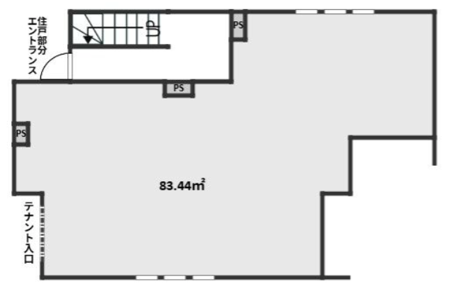
物件詳細 【路面店】テラス室見 1 所在地 福岡市早良区室見2丁目 15-16 交通 福岡市営地下鉄空港線 室見 4分 使用部分面積 83.44㎡ 賃料 33.75万円 敷金 2ヶ月 礼金 1ヶ月 会員登録すると続きをお読みいただけます。 ログイン 無料会員登録 mail物件問い合わせ home_work物件申込み search_check物件内覧申込み favoriteお気に入り