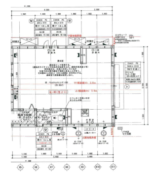
物件詳細 【路面店】住吉4丁目店舗 所在地 福岡市博多区住吉4丁目14-3 交通 福岡市営地下鉄七隈線 櫛田神社前 14分 使用部分面積 32.50㎡ 賃料 16.50万円 敷金 6ヶ月 礼金 3ヶ月 会員登録すると続きをお読みいただけます。 ログイン 無料会員登録 mail物件問い合わせ home_work物件申込み search_check物件内覧申込み favoriteお気に入り