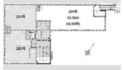
物件詳細 【非路面店】TOMIKE TAKASAGO 201 所在地 福岡市中央区高砂2丁目14-3 交通 西鉄天神大牟田線 西鉄平尾 6分 使用部分面積 56.18㎡ 賃料 28.97万円 敷金 4ヶ月 礼金 1ヶ月 会員登録すると続きをお読みいただけます。 ログイン 無料会員登録 mail物件問い合わせ home_work物件申込み search_check物件内覧申込み favoriteお気に入り