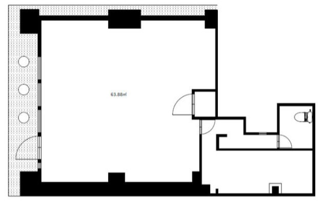
物件詳細 【路面店】なかおかビル 101 所在地 福岡市中央区大手門1丁目5-6 交通 福岡市営地下鉄空港線 大濠公園 6分 使用部分面積 63.86㎡ 賃料 42.50万円 敷金 6ヶ月 礼金 無 会員登録すると続きをお読みいただけます。 ログイン 無料会員登録 mail物件問い合わせ home_work物件申込み search_check物件内覧申込み favoriteお気に入り